Prodej rodinného domu v obci Šestajovice, jen 2 minuty jízdy autem od hranice hlavního města Prahy
Revoluční, Šestajovice
Informace o ceně u makléře v RK
Mám zájemRevoluční, Šestajovice
Informace o ceně u makléře v RK
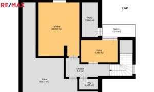
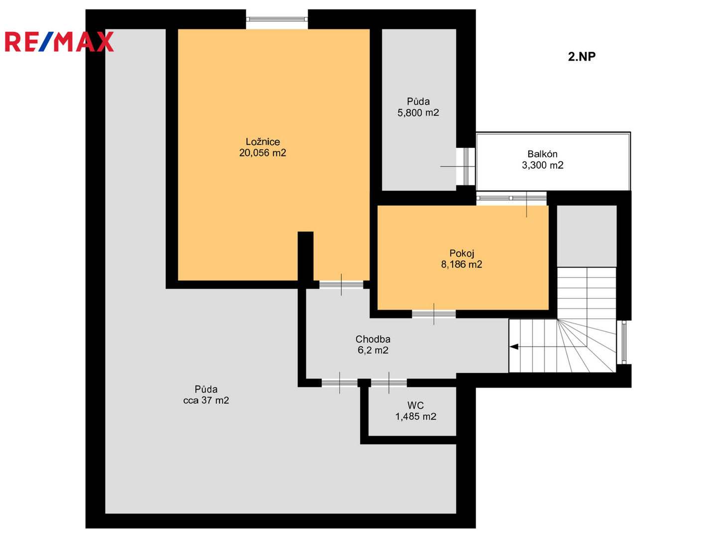
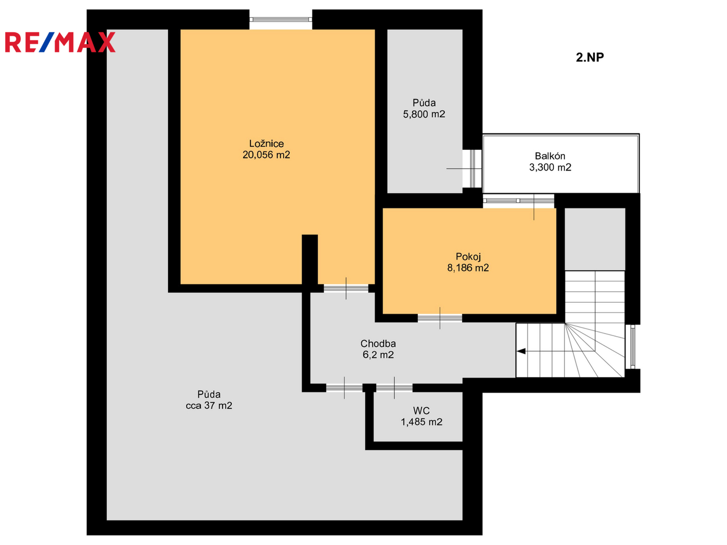
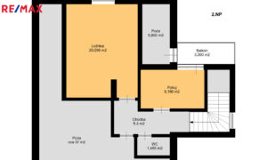
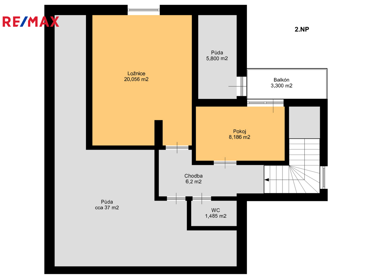
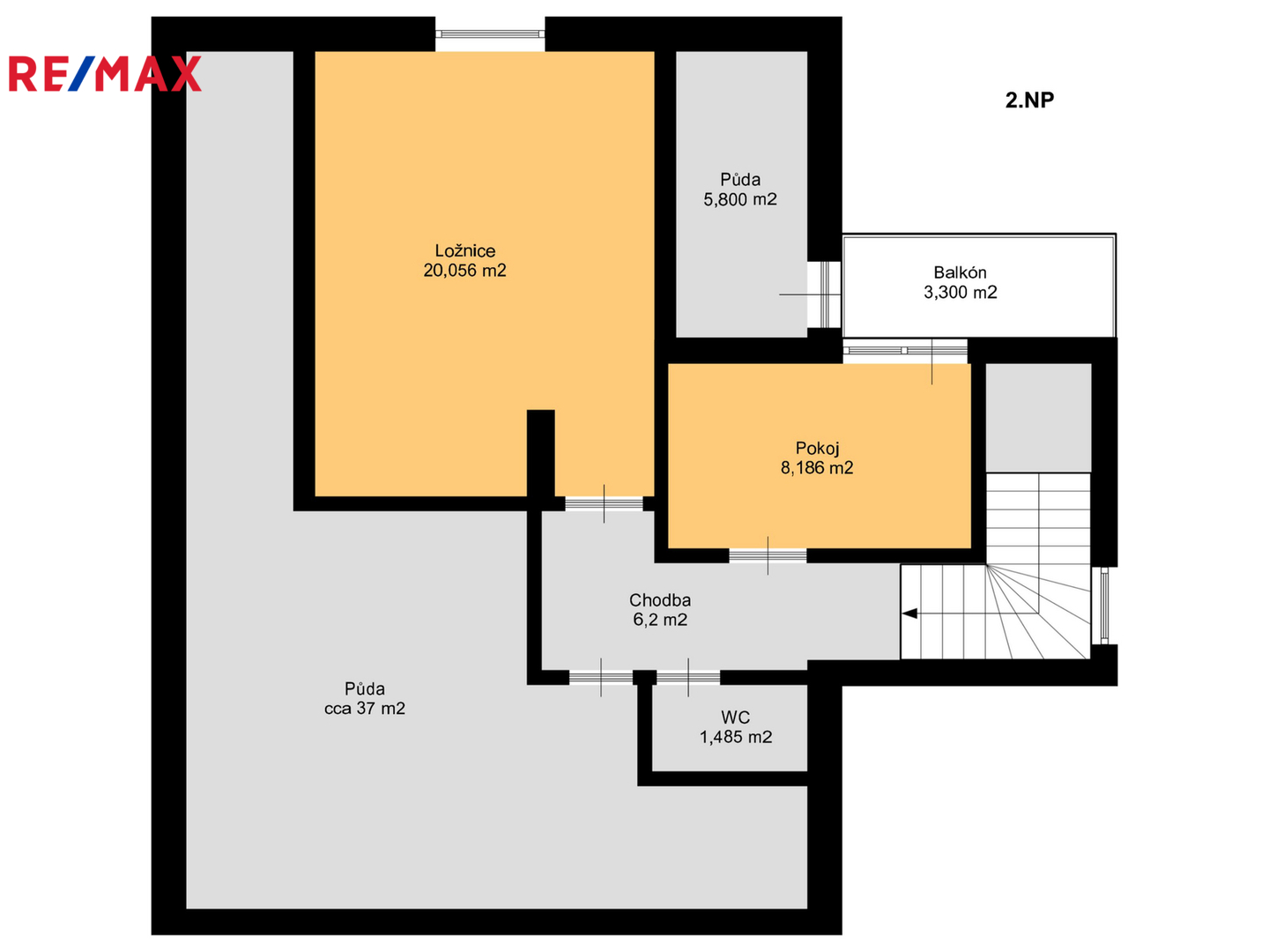
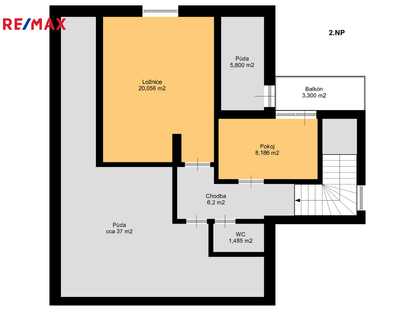
Mám zájemVe výhradním zastoupení majitele si vám dovolujeme nabídnout nezateplený cihlový patrový rodinný dům se sedlovou střechou kolaudovaný v roce 1909 ve velmi dobrém a udržovaném stavu s dispozicí 5+1 vč. půdního prostoru o celkové výměře cca 163 m² s celkovým pozemkem o výměře 1 309 m² v obci Šestajovice, která je vzdálená 2 minuty jízdy autem od hranice hlavního města Prahy. Součástí je i venkovní podsklepená stodola se sedlovou střechou o výměře cca 43 m² do které je přivedena elektřina. Vjezd na pozemek je zajištěn z obecní komunikace.
Dům je napojen na všechny inženýrské sítě — Vodovodní řád, plynovod, kanalizace a EL.
Výměra:
Obytná část – cca 117 m² + balkon 3,3 m² (rozdělena do dvou pater)
Půda – cca 42,8 m²
Stodola – cca 43 m²
Ohřev vody a vytápění je řešeno plynovým kondenzačním kotlem značky BOSH. Vytápění je rozvedeno po celém domě do radiátorů. Okna jsou dřevěná – dvojitá.
Aktuální měsíční režie rodinného domu činí — plyn cca 5.000,-Kč, el. cca 1.900,-Kč měsíčně
Zahrada nabízí mnoho ovocných stromu. Nabízí se zde možnost i realizace bazénu či zastřešené garáže. Velkým příjemným benefitem je, že se pozemek nachází hned vedle vodní plochy Beranka.
V Šestajovicích se nachází plná občanská vybavenost vč. základní školy a školky. Dále je k dispozici supermarket Billa a Penny, drogerie Teta, kavárny a restaurace. V blízké vzdálenosti se nachází dálnice D11, po které se za 15 minut dostanete na Černý most. Velkou výhodou je autobusové spojení ze zastávky Šestajovice, Balkán, která je vzdálená 2 min chůzí od nabízené nemovitosti.
S financováním vám moc rádi pomůžeme.
Pro více informací neváhejte kontaktovat makléře nabídky.

Jan Hart